|
Efter inflyttning kommer Kungälvsbostäder att måla om väggarna i köket.
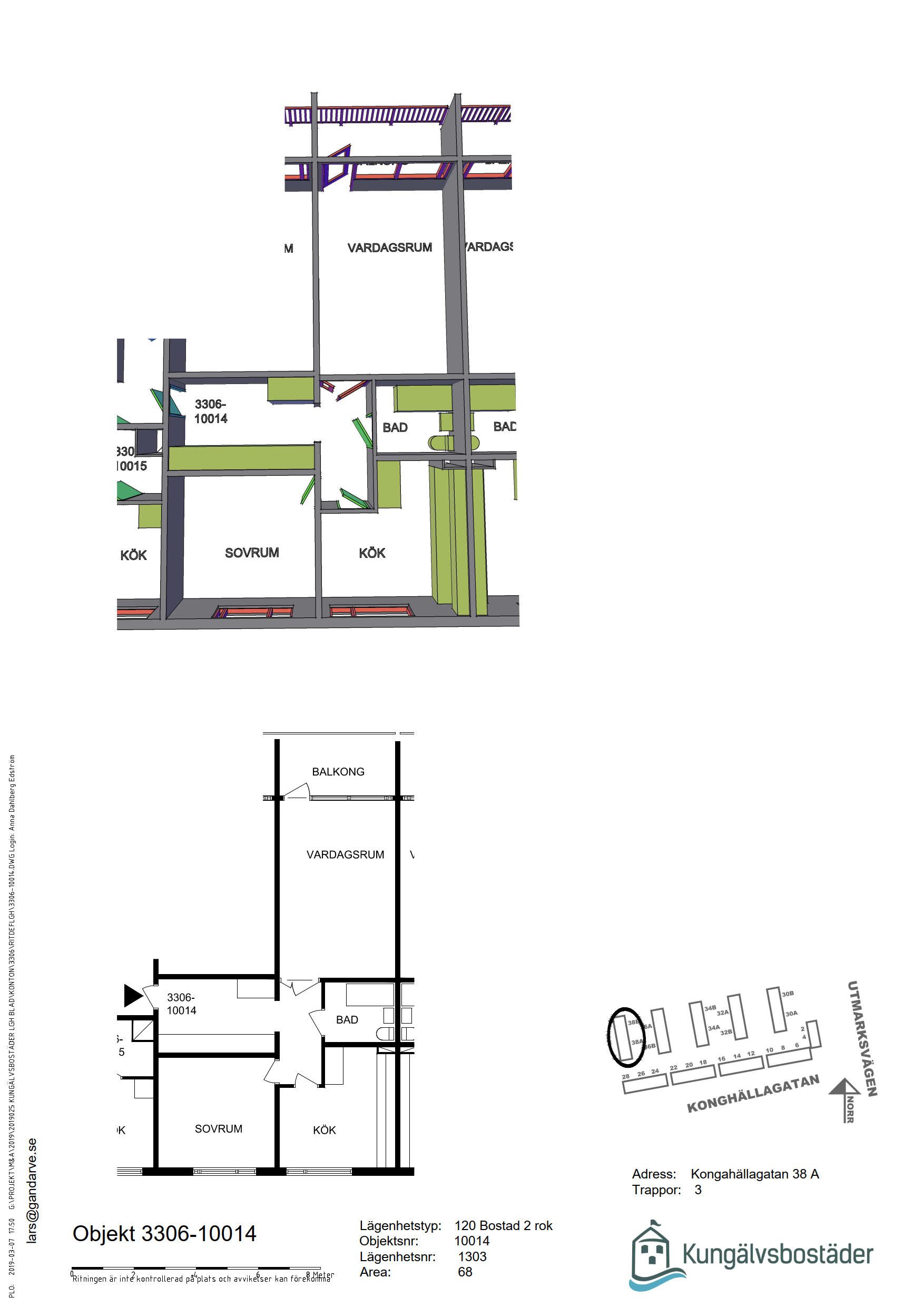
I nedre Komarken finns bostadshus på tre eller sex våningar och här är nära till Resecentrum och köpcentret Kongahälla. Lägenheterna varierar mellan 1 och 4 rum och kök. I höghusen finns hiss samt områdets tvättstugor.
Parkering, både med och utan motorvärmare, finns att hyra i området och söks separat på hyresgästens Mina Sidor.
Information
- Badkar
- Balkong
- Hiss
- Hushållsel Hyresgästen har eget abonnemang
- Kabel-TV Tele2
- Varmhyra
- Värme Hyresvärden
|