|
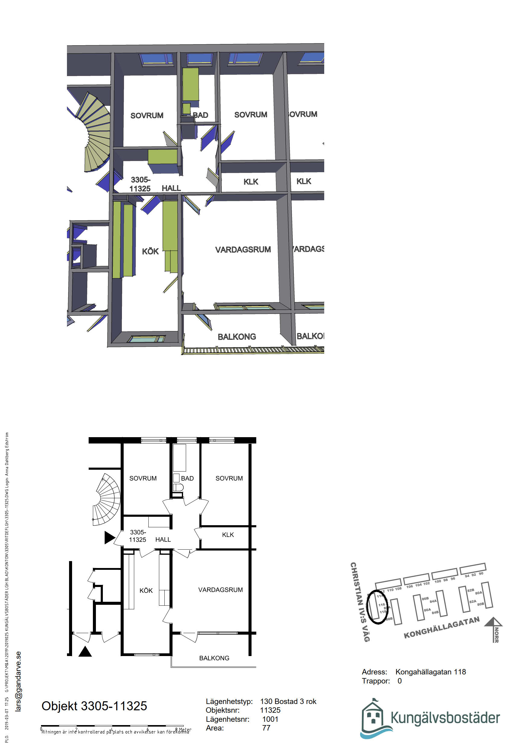
Lägenhet i markplan.
Nuvarande hyresgäst har monterat kolfilterfläkt över spisen som eventuellt kan övertas.
Lägenheten är på markplan men förrådet kan finnas på annat våningsplan.
På Övre Komarken finns bostadshus på tre eller sex våningar och här är nära till skog och promenadstråk. Lägenheterna varierar mellan 1-4 rum och kök. I höghusen finns hiss.
Både parkering och garage finns att hyra i området och söks separat på hyresgästens Mina Sidor, till garage kan det krävas längre kö-tid.
Information
- Badkar
- Balkong
- Hushållsel Hyresgästen har eget abonnemang
- Kabel-TV Tele2
- Varmhyra
- Värme Hyresvärden
|