|
Hyran kommer att höjas med 110 kronor efter att säkerhetsdörr installerats.
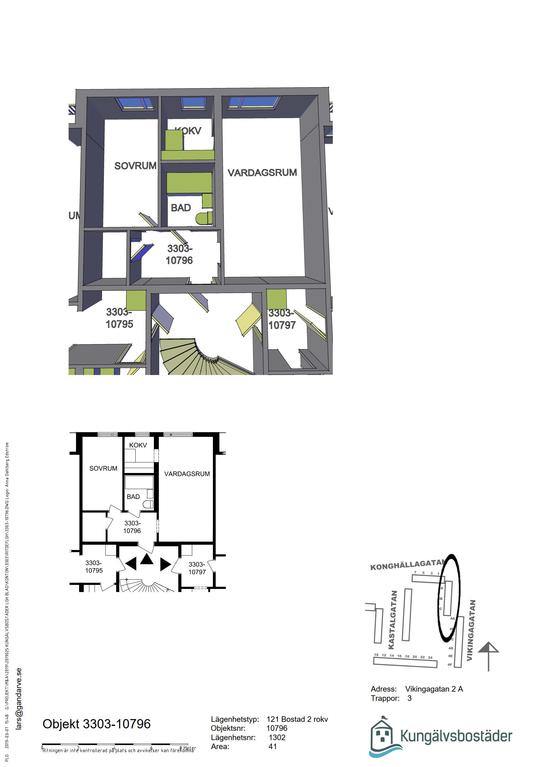
Kyl/frys från 2025 och spis från 2026. Innan inflyttning kommer badkaret att bytas.
Observera att denna lägenhet inte har balkong.
Söder om Kongahällagatan, i det område som kallas Gula Komarken, finns flerbostadshus på 3 - 4 våningar. Husen saknar hiss. Området är mycket populärt på grund av sin närhet till stadens centrala delar, resecentrum samt de låga hyresnivåerna.
I närheten finns förskola och skola samt en stor matbutik och service i form av frisör, café och restaurang.
Parkering finns i området och söks separat på hyresgästens Mina Sidor. Just nu är det väntetid på parkering närmast bostaden men parkeringsplatser finns på andra sidan Kongahällavägen.
Information
- Badkar
- Ej Balkong
- Hushållsel Hyresgästen har eget abonnemang
- Kabel-TV Tele2
- Varmhyra
- Värme Hyresvärden
|