|
Söder om Kongahällagatan, i det område som kallas Gula Komarken, finns flerbostadshus på 3 - 4 våningar. Husen saknar hiss. Området är mycket populärt på grund av sin närhet till stadens centrala delar, resecentrum samt de låga hyresnivåerna.
I närheten finns förskola och skola samt en stor matbutik och service i form av frisör, café och restaurang.
Parkering finns i området och söks separat på hyresgästens Mina Sidor. Just nu är det väntetid på parkering närmast bostaden men parkeringsplatser finns på andra sidan Kongahällavägen.
Information
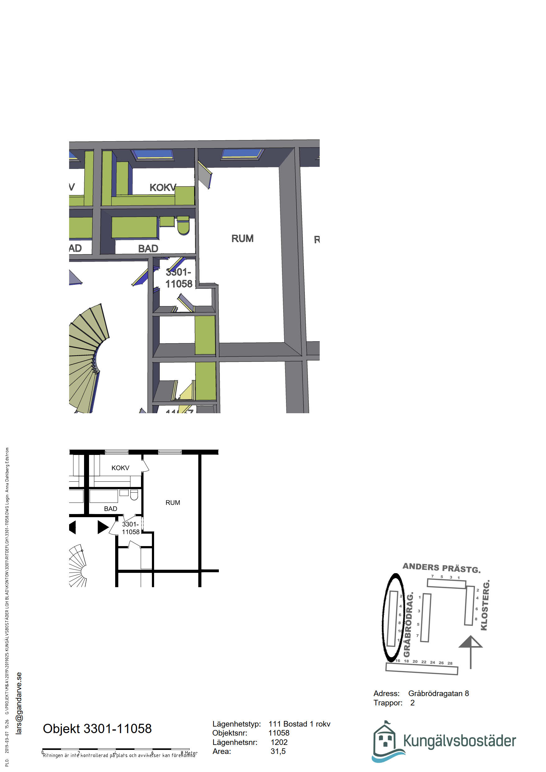
- Badkar
- Balkong (fransk)
- Hushållsel Hyresgästen har eget abonnemang
- Kabel-TV Tele2
- Varmhyra
- Värme Hyresvärden
|