|
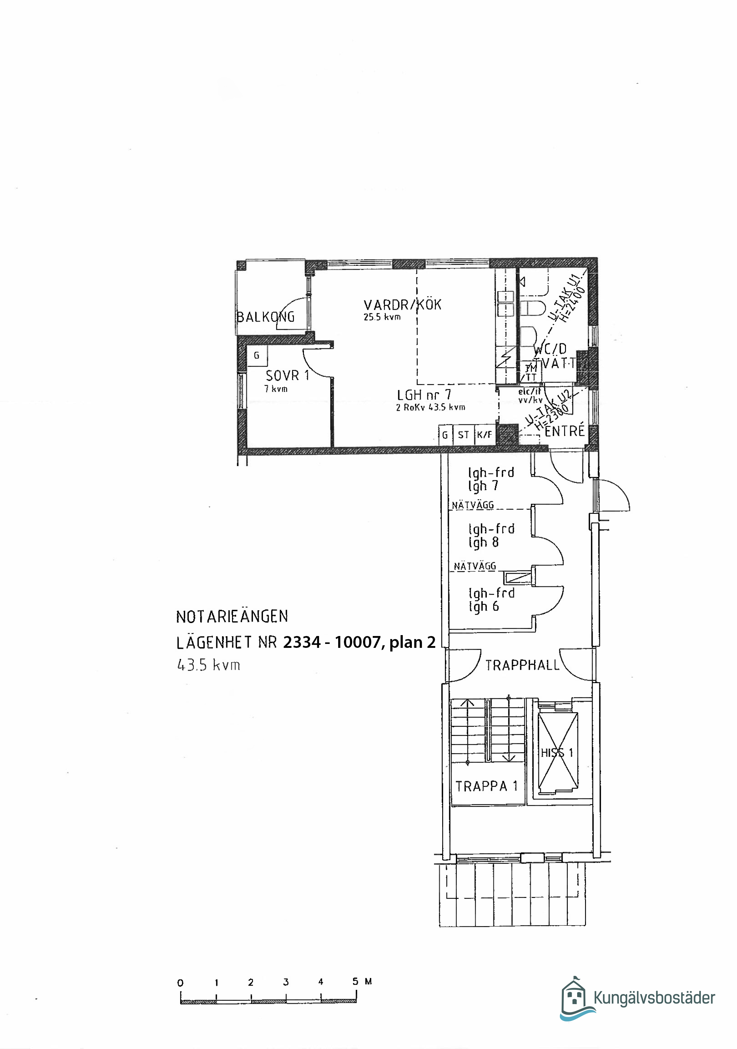
På Rökgatan finns ett hus med 14 lägenheter byggt 2006. Fastigheten har ett öppet varmgarage under huset. Det finns ingen gemensam tvättstuga i huset utan alla har egen tvättmaskin/torktumlare i lägenheten.
Garage: Finns att hyra i huset
Information
- Balkong
- Dusch
- Fiber
- Hiss
- Hushållsel Hyresgästen har eget abonnemang
- Kabel-TV Tele2
- Ny säkerhetsdörr
- Porttelefon
- Torktumlare
- Tvättmaskin
- Varmhyra
- Värme Hyresvärden
|