|
Hemvägen
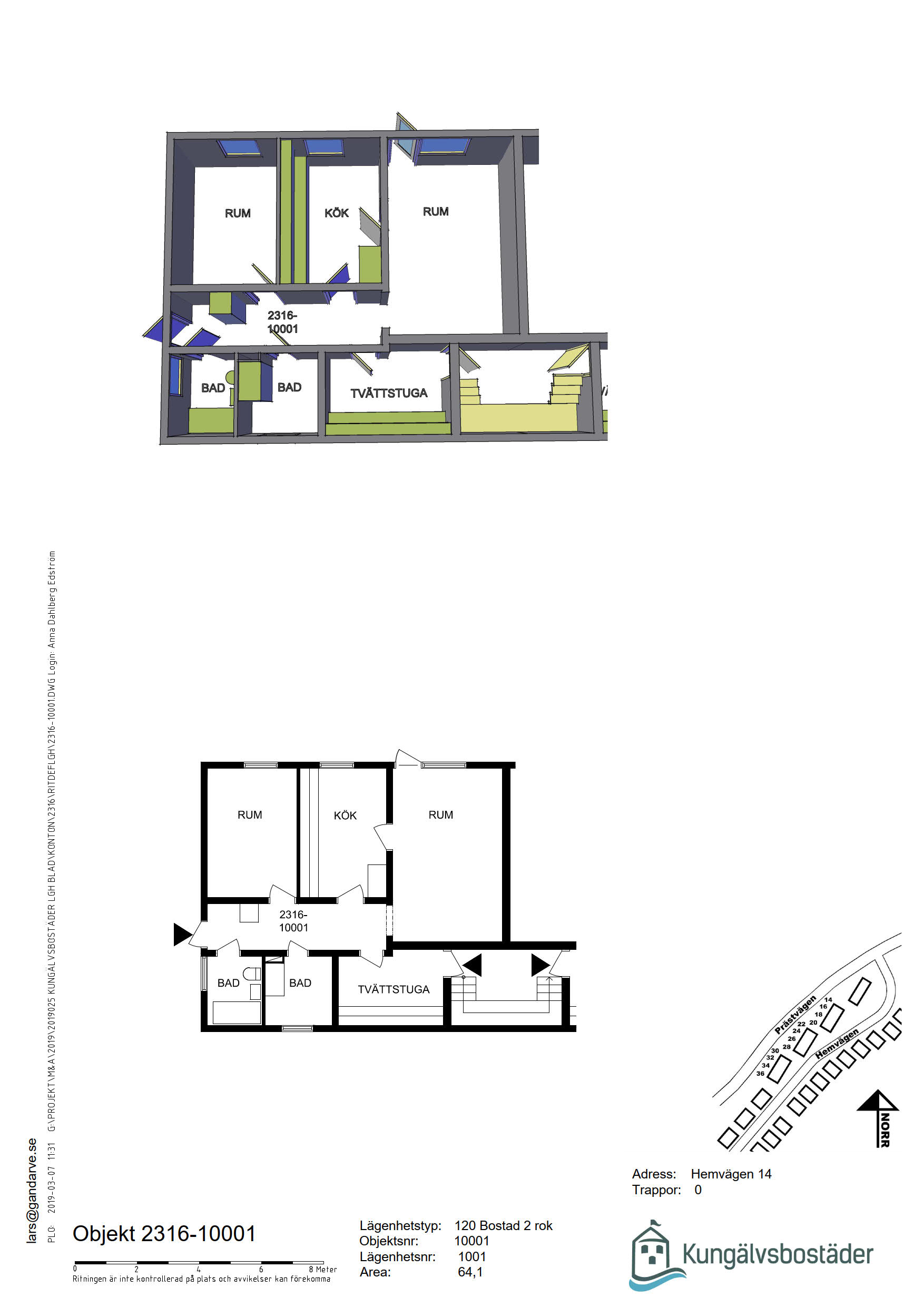
Cirka 7 km från Kungälv ligger Diseröd som är centralorten i Romelanda. På Hemvägen centralt i Diseröd med nära till kommunikationer har vi suterränghus med 2–3 rum och kök. Här finns 12 lägenheter för hyresgäster som fyllt 65 år. Denna lägenhet ligger på det nedre planet.
Lägenhetens väggar kommer att målas och golven kommer att få nya mattor under nästa hyresgästs kontraktstid (ej badrum).
P-plats: I Romelanda finns garage och p-platser att hyra
Information
- Bränsle ingår ej
- Dusch
- Hushållsel Hyresgästen har eget abonnemang
- IPTV Kungälvs Energi
- Kallhyra
- Seniorlägenhet (+65)
- Uteplats
- Värme Hyresgästen
|