|
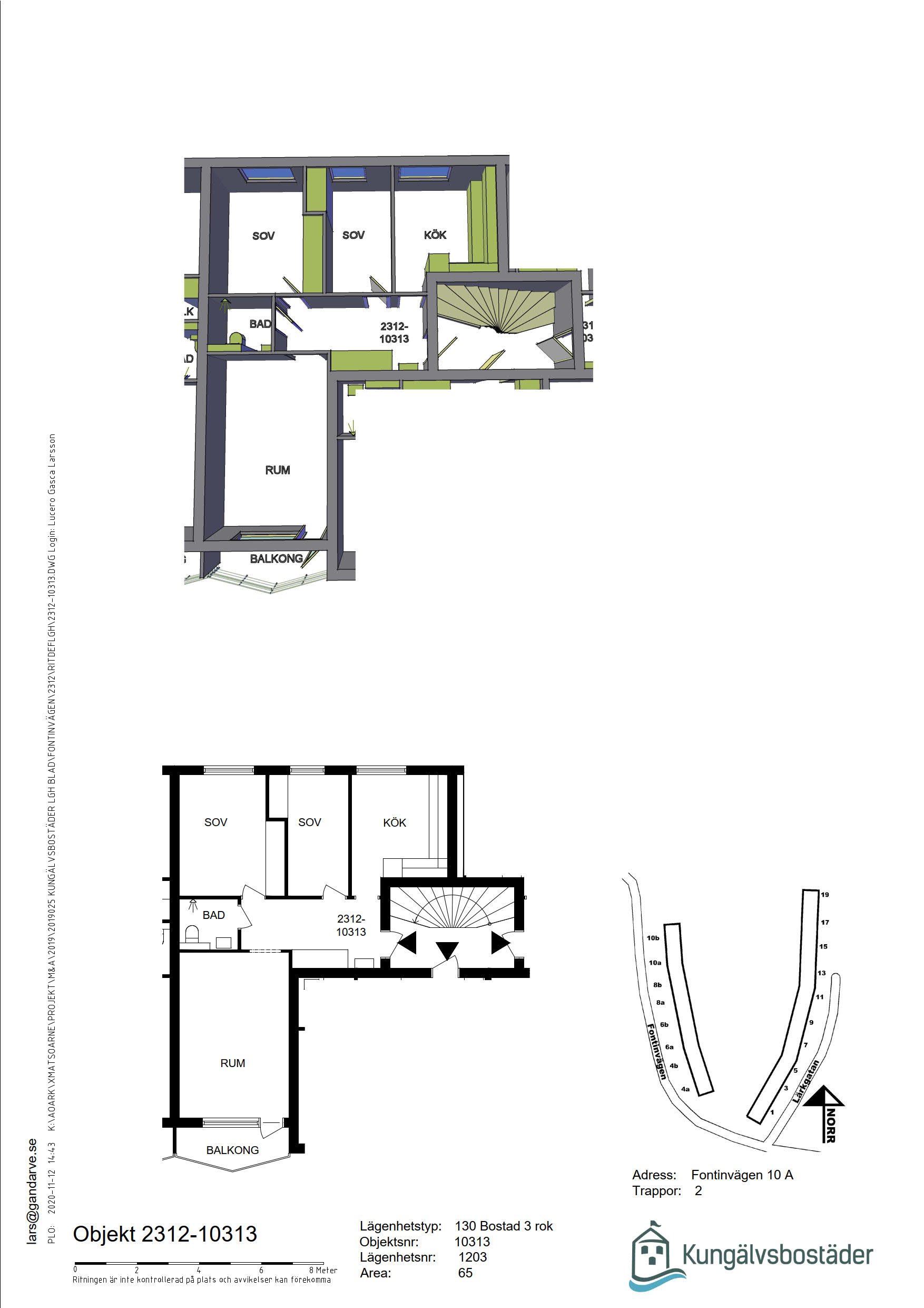
Renoverad lägenhet på Fontinvägen
Fastigheten genomgick ett stambyte med tillhörande renovering under 2021–2022.
Kök och badrum har renoverats liksom el och ventilation samt allmänna utrymmen i fastigheten. Det är glidhängda 3-glasfönster, nya termostatstyrda element, nya innerdörrar och säkerhetsdörr.
Badrummet har vitt kakel på väggarna och klinker med golvvärme på golvet. I badrummet finns vägghängd wc-stol, tvättställ i vitt porslin samt termostatblandare på tvättställ och dusch. Det finns spegelskåp med belysning, rostfria krokar och toalettpappershållare, vägghängd torkställning samt draperistång för duschen och duschkorg.
Köket har nya stommar med skåpinredning samt luckor, lådfronter och bänkskiva i laminat och kakel som stänkskydd. Där finns spis med glaskeramikhäll och belysning över arbetsytorna, fläktskåp med kryddhylla, och diskbänk med två hoar. Köket är förberett för installation av diskmaskin.
P-PLATS: Finns att hyra i området, även garageplats (kö).
Information
- Balkong
- Dusch
- Fiber
- Golvvärme badrummet
- Hushållsel Hyresgästen har eget abonnemang
- Kabel-TV Tele2
- Ny säkerhetsdörr
- Plusnivå Fontin
- Porttelefon
- Renoverad 21-22
- Varmhyra
- Värme Hyresvärden
|