|
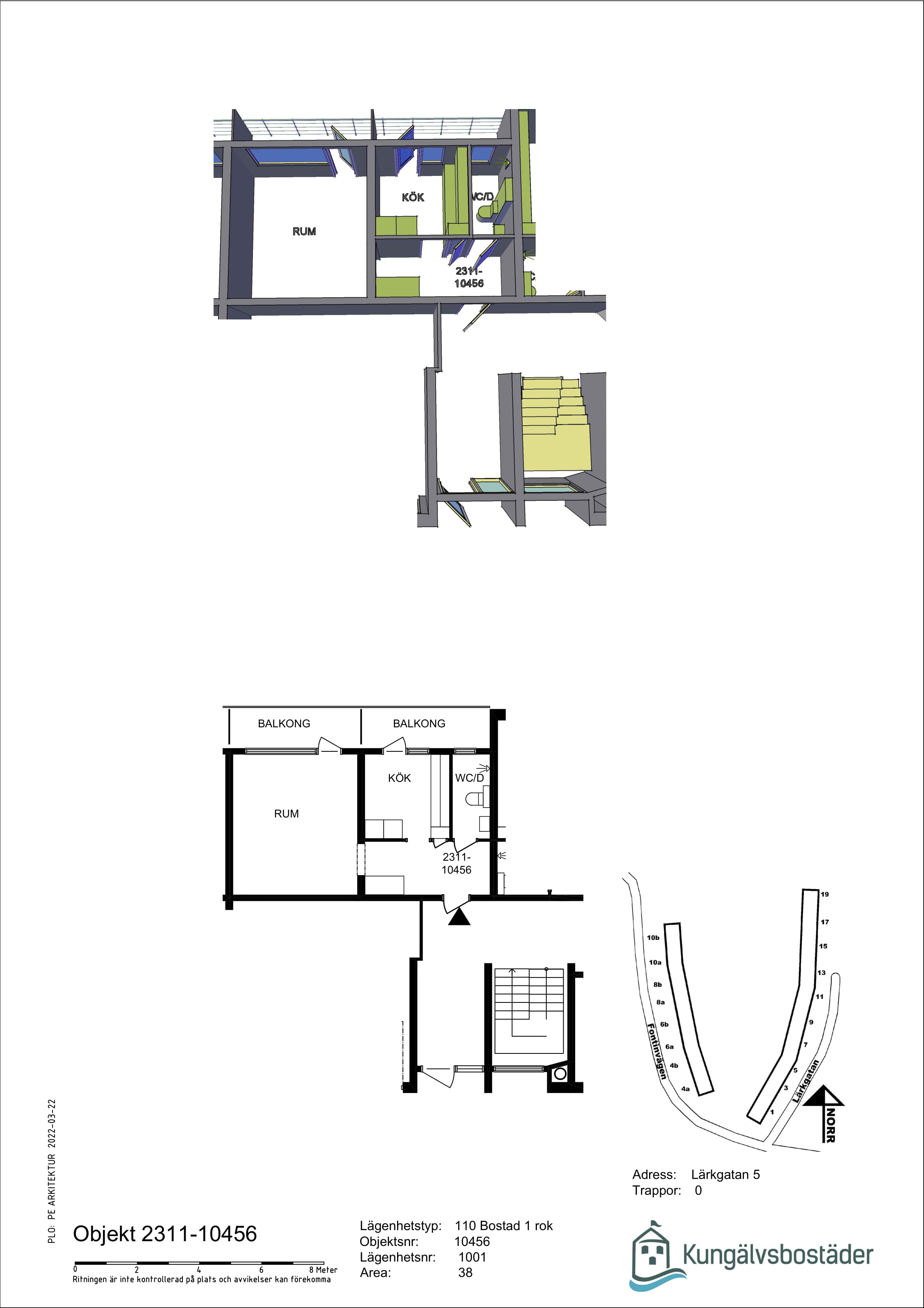
Renoverad lägenhet på Lärkgatan
Fastigheten har genomgått ett stambyte med tillhörande renovering under 2023–2025 och är nu klar.
Köket och badrummet har renoverats liksom el och ventilation samt allmänna utrymmen i fastigheten. Det är glidhängda 3-glasfönster, nya termostatstyrda element, nya innerdörrar och säkerhetsdörr.
Badrummet har vitt kakel på väggarna och ljusgrå klinker med golvvärme på golvet. I badrummet finns vägghängd wc-stol, tvättställ i vitt porslin samt termostatblandare på tvättställ och dusch. Det finns spegelskåp med belysning, rostfria krokar och toalettpappershållare, vägghängd torkställning samt draperistång för duschen och duschkorg. Det finns tyvärr ingen plats för tvättmaskin.
Köket har fått nya stommar med skåpinredning samt luckor, lådfronter och bänkskiva i laminat och kakel som stänkskydd. Där finns spis med in och belysning över arbetsytorna, fläktskåp med kryddhylla, och diskbänk med två hoar.
Lägenheten ligger på entreplan, inga trappor till lägenheten inomhus.
P-PLATS: Finns att hyra i området, även garageplats (kö).
Information
- Balkong
- Dusch
- Fiber
- Golvvärme badrummet
- Hushållsel Hyresgästen har eget abonnemang
- Kabel-TV Tele2
- Ny säkerhetsdörr
- Porttelefon
- Renoverad 22/23
- Varmhyra
- Värme Hyresvärden
|